您的位置: 首页 > 球速官网 > 球速体育APP

球速体育- 球速体育官方网站- APP下载80、90后的最爱9款二层养眼农村别墅到让您心跳加速!果断收藏

发布日期:2026-03-12 12:31:25 浏览次数:

  球速体育,球速体育官方网站,球速体育APP下载整栋别墅展现出明快亮丽的独特魅力,米黄色的墙与深蓝色的坡屋顶完美相结合,营造出一种不落俗套的优雅氛围。在阳光的照耀下,深蓝色的屋顶折射出深邃而迷人的光泽,显得格外醒目,成为整个建筑的点睛之笔。正面效果图;惊艳!9款如此养眼二层农村别墅,到让您心跳加速!果断收藏

  从入户开始,平台的设置贴心周到,既能遮风挡雨,又为住户增加了活动的空间。靠近南门的室内车库,充分考虑到了现代家庭的出行需求,停车变得方便又快捷。

  走进屋内,首先映入眼帘的是前厅,这种设计巧妙地提升了住户的隐私性,让人在归家的瞬间就能感受到一份专属的宁静。客厅与餐厅相互连通,形成了一个宽敞而开阔的空间。在这里,空间显得充裕无比,视野也极为开阔,无论是日常的家庭聚会还是接待宾客,都能够展现出足够的体面和大气。朝南的卧室布局合理,温馨舒适,非常适合老人居住,方便他们的日常起居,让长辈们能够在温暖与舒适中享受宁静的生活。

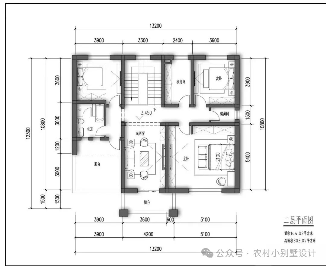
  二层的设计同样令人惊艳,一共规划了四间卧室。如此充足的卧室数量,不仅能够完美满足一家人的日常生活起居需求,就算是逢年过节,亲戚朋友来往频繁,也能确保有足够的房间供他们居住,让亲情和友情在这温馨的空间里得以延续。

  在别墅的西面,还精心设计了一个露台。这个露台仿佛是为生活增添色彩的魔法角落,它适合观景,让您可以在闲暇时刻,尽情欣赏周围的美景,感受大自然的宁静与美好;也适合举办聚会烧烤,亲朋好友们围坐在一起,享受美食与欢乐,为家人的娱乐生活增添了丰富多样的选择。

  此外,二层还配备了两个卫生间和一个储藏间,方便日常生活的同时,也增加了储物空间,让家居环境更加整洁有序。而客厅和阳台的存在,则为二层提供了更多的休闲和放松的空间,让居住者可以在这里尽情享受舒适惬意的时光。

  无论是一层的实用与舒适,还是二层的丰富与温馨,这栋别墅的每一个角落都经过了精心的考量和设计,旨在为居住者打造一个理想的家园。

  整栋别墅展现出明快亮丽的独特魅力,米黄色的墙与深蓝色的坡屋顶完美相结合,营造出一种不落俗套的优雅氛围。在阳光的照耀下,深蓝色的屋顶折射出深邃而迷人的光泽,显得格外醒目,成为整个建筑的点睛之笔。正面效果图

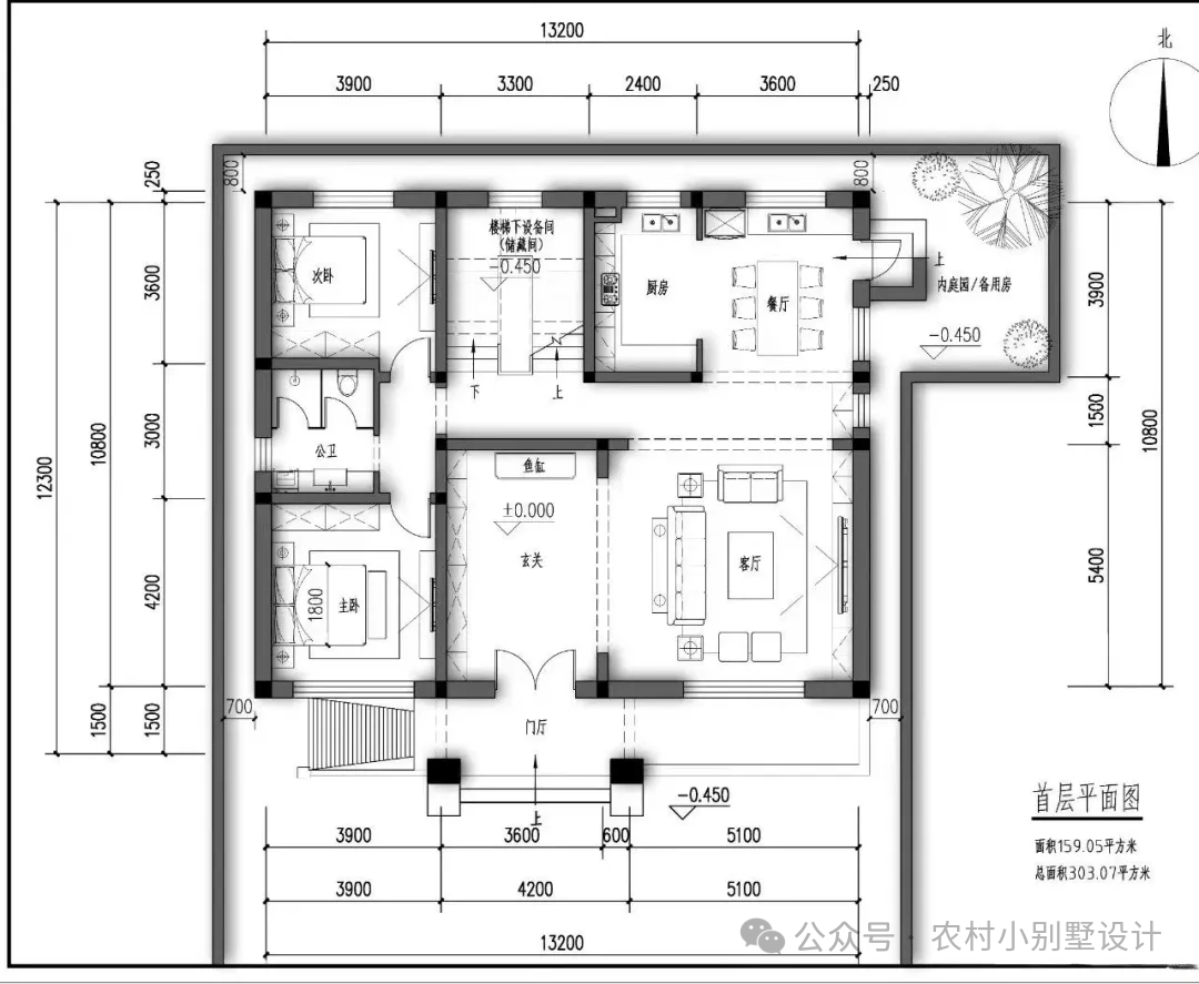
  这栋别墅的占地尺寸为 13.2 米×12.3 米,占地面积 160 平方米,建筑面积 303 平方米。标准的三开间别墅,外观大气美观,造型简洁明亮。墙体采用真石漆,高端上档次,瞬间提升了别墅的整体质感。

  走进别墅内部,布局更是精心设计。一层设有玄关、客厅、餐厅、厨房、储藏间、2 间卧室和公共卫生间。空间开阔,布局得体。进门的玄关,中正大气,可作为堂屋使用,彰显出庄重与威严。右转进入客厅,与玄关空间融为一体,大气非凡,让您在待人接物时倍感有面子。厨房与餐厅相邻,饭菜飘香四溢。出厨房即餐厅,就餐便利无比。餐厅侧面还开有小门,可直通庭院,空气流通顺畅,让人心情愉悦。各区域功能分明,互不干扰,让您充分享受慢调生活。储藏间的设置在农村十分实用,可存放杂物等。卫生间位于两间卧室之间,方便日常生活起居。朝南的卧室采光极佳,窗外绿意尽收眼底,最适合家中老人居住,对他们的身体大有裨益。

  二层设有起居室、3 间卧室、储藏间、卫生间、阳台、露台和衣帽间。二楼对于空间的利用可谓精妙至极,在满足功能需求的同时,各区域空间尽显舒适得体。起居室外接阳台,清风自然入室,保持室内清新宜人。主卧面积宽敞,虽不是套间,但舒适度丝毫不减,为您带来完美的居住体验。独立设计的衣帽间,满足一家人的存衣需求。大露台可供休闲晾晒,您还可以将其布置成花园,尽情发挥想象,用途多多

  在寻觅理想家园的旅途中,一处完美的别墅设计无疑是每个人心中的憧憬。今天,就为您带来一座占地尺寸为面宽 12 米、进深 11.6 米,占地面积 139 平米,建筑总面积 280 平米的梦幻别墅,快来一起感受它的独特魅力吧!

  当您第一眼看到这座别墅,一定会被它对称的设计所吸引。对称美学在建筑设计中经久不衰,在这座别墅中更是展现得淋漓尽致。它的正立面给人一种平衡与稳定之感,仿佛在向我们诉说着新古典主义风格的秩序与和谐,庄重而典雅,宛如一件精心雕琢的艺术珍品。

  走进别墅内部,大面积的玻璃窗是一大亮点。阳光透过这些玻璃窗,毫无保留地洒进室内,让每一个角落都充满了温暖与光明。在这里,您可以与自然亲密接触,无论是欣赏窗外的四季更迭,还是感受微风的轻抚,都能让您的生活充满诗意。玻璃窗的设计不仅为室内带来了充足的光线,更是打破了室内外的界限,将自然美景引入生活,让您在日常生活中也能享受到度假般的惬意。

  别墅的外墙色彩搭配同样值得称赞。纯净的白色为主色调,搭配深色的窗框和门框,形成了鲜明的对比,简洁而大气。这种配色方案既不失现代感,又能在视觉上给人以强烈的冲击,仿佛是一幅清新脱俗的水墨画,让人过目难忘。而细节处的装饰,如门上的圆形图案和立柱上的雕刻,更是锦上添花,为建筑增添了一份精致感和艺术气息,仿佛在向人们展示着建筑大师的匠心独运。

  这栋别墅外观给人一种宁静祥和的感觉。整体色调以淡雅的米白色为主,搭配深灰色的屋顶,显得沉稳大气。别墅的外立面采用了中式传统的回纹装饰,精致而富有韵味。大门采用了朱红色的实木门,两侧是对称的石雕,彰显出尊贵的气质。二层的阳台设计简洁大方,围栏采用了中式的雕花工艺,增添了几分优雅。从远处望去,这栋别墅宛如一幅宁静的山水画,让人陶醉其中。

  方案简介:磅礴气势和中式建筑的层次感。中式传统门头,气派十足。双层挑空客厅,坐拥南向超级景观视野,南北通透,全明户型,采光通风视野极佳。

  别墅展现出了典雅的风范。它以白色和深棕色为主色调,对比鲜明却又和谐统一。屋顶采用了独特的坡屋顶设计,线条流畅,排水顺畅。窗户采用了大面积的落地窗,不仅增加了室内的采光,还能让您在室内尽情欣赏室外的美景。别墅的正面有一个宽敞的门廊,门廊的柱子采用了中式的圆柱造型,给人一种庄重之感。二层的露台设有遮阳伞和休闲桌椅,是您与家人朋友休闲娱乐的好去处。整栋别墅散发着一种优雅的气质,让人过目难忘。

  第三款别墅充满了古朴的韵味。它的外观采用了青砖和灰瓦,仿佛将我们带回了古老的时光。别墅的大门采用了拱形设计,门上方是精致的回字形花纹,体现了对家庭和睦的美好祝愿。一层的窗户采用了木质的窗框,搭配白色的窗纱,显得温馨而浪漫。二层的栏杆采用了中式的镂空设计,独具匠心。在别墅的一侧,还有一个小巧的花园,种满了各种花卉和绿植,让您在繁忙的生活中能感受到大自然的美好。这栋别墅犹如一位历经沧桑的老者,静静地诉说着岁月的故事。

  最后一款别墅则融合了现代时尚元素与传统中式风格,展现出独特的魅力。别墅的外观以浅黄色为主,搭配黑色的线条装饰,简洁而富有层次感。屋顶采用了平坡结合的设计,既实用又美观。窗户采用了时尚的飘窗设计,增加了室内的使用空间。别墅的大门采用了玻璃门,通透而明亮。二层的阳台设有玻璃围栏,视野开阔。整栋别墅既具有中式的典雅,又不失现代的时尚感,是新时代农村别墅的典范。

  总之:现在农村的政策越来越好,很多人在外面挣了钱就想回家盖房子。所以老家的房子,越豪华越大气,越受村里人尊重。因为你在外面赚钱买房,有本事了,没人知道。但是你在老家建一栋别墅,大家就都知道你有本事了,父母也为你自豪。

  今天给大家分享9栋别墅二层农村自建房别墅,优雅质朴的田园风别墅曾风靡一时,深受无数建房者的喜爱。田园风格建筑旨在倡导回归自然,创造自然、简朴、高雅的氛围,营造出悠然自得的居住环境,让居住者感受不同的乡村田园生活。

  2025年回农村建房,如果你不知道怎么设计,不妨看看这8套二层田园风别墅,总有一套适合你。

  以下我们推出的每套图纸都有详细的尺寸布局,如果里面布局尺寸不满意,还可根据你的要求修改调整内部布局尺寸等,也可以根据你的地基要求量身定做设计,要图纸微我? :农村小别墅设计

  想要以上别墅全套施工图纸还是想要根据您的地基及要求来定制设计独一无二的个性化别墅大宅?请加我们微信号

  ,全套图纸包含完整效果图预览,房屋平面设计、结构设计、建筑设计、水电设计以及各个细微部分的设计,图纸拿给施工人员即可立即施工。